341 N. Delaware St (Cal Water Yard) - Site Improvements

PA21-044 image

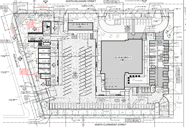
Project Description

This project proposes exterior site improvements at the California Water Service Baywood District Office including a parking lot modification to create 32 employee parking spaces; relocate of an existing driveway on E. Poplar Avenue southwest by approximately 170 feet; and construct a 3,741 square-foot covered soil bin and installation of pallet and pipe storage racks. The project also proposes the removal of six trees over six-inches in diameter and an increase in the height of the existing fence from six feet to eight feet along the intersection of N. Delaware Street and E. Poplar Avenue.  

Project Update

  • The Application was approved on August 13, 2024.
  • The Application deemed complete on May 24, 2024.
  • The Applicant filed the Planning Application on June 18, 2021. 

CEQA 

Addendum to an adopted Mitigated Negative Declaration (PA-2016-027), finding that the project does not cause new significant impacts to the environment (June 17, 2024).

Plans and Documents

Applicant Information

Brandon Rachac 
(916) 558-5196
Brandon.Rachac@lionakis.com

City Contact Information

Somer Smith, AICP
Associate Planner
(650) 522-7214
ssmith@cityofsanmateo.org